Soluciones Profesionales en Diseño y Dibujo Técnico
Somos un Estudio de Diseño especializado en dibujo técnico profesional en AutoCAD y Renders 3D para la representación gráfica de planos arquitectónicos, instalaciones, objetos o muebles. Ofrecemos servicios a estudios de arquitectura, ingeniería y particulares que necesiten digitalización y actualización de planos dibujados en papel, relevamientos de propiedades para mediciones y dimensiones, o planos para venta y alquiler inmobiliario. También realizamos documentación técnica, correcciones para trámites de habilitación municipal, y planos de instalaciones eléctricas, sanitarias y de gas etc.
Trabajamos en forma Presencial y en formato Online para todo el mundo , tenemos un Servicio de Dibujo Express 24 hs. donde Digitalizamos planos en Autocad , corregimos dibujos en AutoCAD.
COMUNICATE CON NOSOTROS POR WHATSAPP Y TE COTIZAMOS EN EL MOMENTO, TUS DIBUJOS Y PROYECTOS, CON LOS MEJORES PRECIOS Y TIEMPOS DE ENTREGA.
Nuestros Servicios
Dibujo técnico en AutoCAD y Renders 3D
Realizamos planos técnicos y renders 3D para la representación visual de proyectos arquitectónicos, instalaciones, objetos o muebles. Nuestros servicios están diseñados para estudios de arquitectura, ingeniería o clientes particulares que necesiten comunicar sus ideas con precisión y profesionalismo.
Digitalización y actualización de planos
Convertimos planos en papel a formato digital AutoCad, PDF, y JPEG, asegurando precisión y claridad. También actualizamos planos existentes para reflejar cambios recientes o para cumplir con normativas vigentes.
Planos para documentación de obra y habilitaciones municipales
Confeccionamos planos técnicos en AutoCAD para Documentaciones de Obra, incluyendo correcciones necesarias para trámites de habilitación municipal.
Relevamiento de obra y propiedades
Realizamos mediciones y relevamientos en obra o propiedades (Casas, Edificios, Galpones, Terrenos, Campos) , generando planos precisos con las dimensiones y características requeridas. Este servicio es ideal para Inmobiliarias o Propietarios que buscan vender o alquilar sus propiedades con información detallada y confiable.
Planos de instalaciones
Confeccionamos planos en Autocad de instalaciones eléctricas, sanitarias, de gas, y más, asegurando una representación gráfica completa y precisa que facilite el diseño, construcción y mantenimiento de estos sistemas.
Trabajos Express en 24 hs.
Tenemos un servicio de dibujo en Autocad y Diseño Express para satisfacer los trabajos Urgentes, esto incluye digitalización, relevamientos, correcciones y actualizaciones de dibujos de planos en Autocad. Este servicio puede ser presencial u online para todo el mundo.
Diseñamos Proyectos y AnteProyectos
Diseñamos tu casa o edificio, tu reforma o ampliación , puede ser a partir de un croquis con medidas y fotos , pasamos en limpio los planos a AutoCad y a un Render 3d para lograr la mejor visón del proyecto.
PORTFOLIO
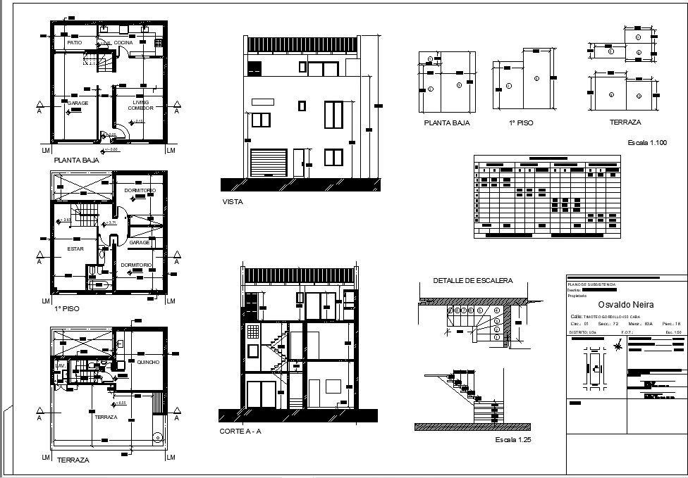
Relevamiento y dibujo de planos de Propiedades
.webp)

.webp)


Estas imágenes muestran el proceso de creación de planos en AutoCAD 2D y Modelos 3D, a partir de un croquis de relevamiento, diseñados para facilitar la comprensión y el dimensionamiento de espacios. Ideales para Inmobiliarias o Particulares, permiten mostrar propiedades de manera detallada y profesional, optimizando su presentación para ventas o alquileres.
Planos de Instalaciones
Instalaciones Eléctricas


Instalaciones Sanitarias


Planos de Evacuación


Documentación de Obra
Detalles de Obra




Planos Municipales
